• 91免费福利网站,91免费观看网站,91免费在线播放视频,91免费看黄视频下载

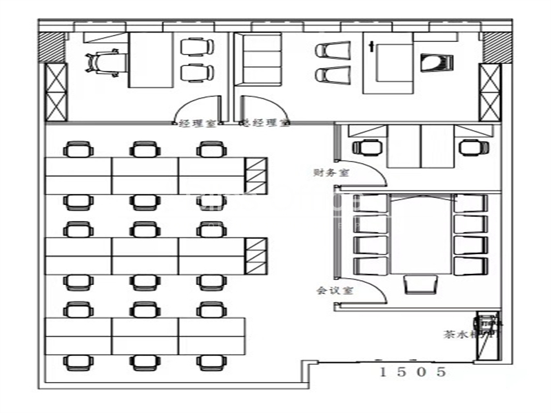
    达邦协作广场精装修带家具270平,地铁口至大户型

    分享
    5.75 万元/月
    • 单价:7.0元/㎡/天
    • 物业费:31.0元/㎡/月
    270㎡
    建筑面积
    20-30人
    容纳工位
    带装修家具
    装修
    • 闸 北-上海火车站
    • 1号线-上海火车站、3号线-上海火车站、12号线-汉中路
    • 达邦协作广场

    房源专属顾问为您服务

    徐佳乐Jerry

    13052210023
    预约看房

    公共交通

    Public transit

    达邦协作广场

    闸 北上海火车站恒丰路399号

    网站地图