• 91免费福利网站,91免费观看网站,91免费在线播放视频,91免费看黄视频下载

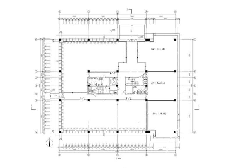
    应氏大厦,800平可分割,标交,房型方正

    分享
    14.60 万元/月
    • 单价:6.0元/㎡/天
    • 物业费:30.0元/㎡/月
    800㎡
    建筑面积
    80-140人
    容纳工位
    标准交房
    装修
    • 黄 浦-南京东路
    • 2号线-南京东路、10号线-南京东路
    • 应氏大厦

    房源专属顾问为您服务

    徐佳乐Jerry

    13052210023
    预约看房

    公共交通

    Public transit

    应氏大厦

    黄 浦南京东路天津路180号

    网站地图