• 91免费福利网站,91免费观看网站,91免费在线播放视频,91免费看黄视频下载

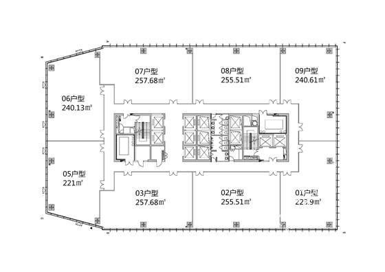
    国华人寿金融大厦出租255方精装家具适合金融

    分享
    5.82 万元/月
    • 单价:7.5元/㎡/天
    • 物业费:32.0元/㎡/月
    255㎡
    建筑面积
    20-30人
    容纳工位
    带装修家具
    装修
    • 浦 东-世纪大道
    • 2号线-世纪大道、4号线-世纪大道、6号线-世纪大道、9号线-世纪大道
    • 国华人寿金融大厦

    房源专属顾问为您服务

    杨亦晗Cassie

    13167276699
    预约看房

    公共交通

    Public transit

    国华人寿金融大厦

    浦 东世纪大道向城路288号

    网站地图